Slideshow image

The Leighton Archives is relocating to St. Paul's Cathedral. The Archives closes its Huron College location permanently on April 30. All research and information will be suspended on May 8. Reopening is planned for October 2026. 

By Tom Adam

In March, we detailed the rocky road to selecting St Paul’s Cathedral as the new home for the Diocesan Archives, easily accessible and centrally located in the Heart of Huron. We now are full steam into the renovation and retrofitting of our new spaces located across two floors within the envelope of the Cathedral building. Here is a sneak peek for you of what will be where in the new Leighton Archives.

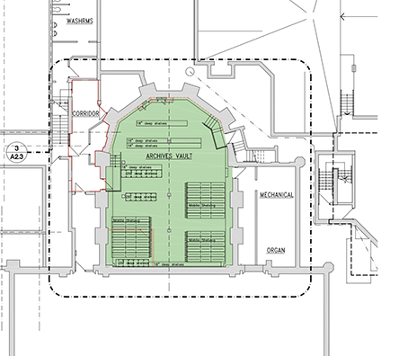
The Vault

Lower Level

The core of the Leighton Archives is its collections of records, papers and rare and fragile artifacts.

All of this will be housed in a purpose-built and environmentally stable space on the lower level immediately below the Cathedral sanctuary. We will relocate and reconfigure our compact shelving unit from Huron University College and supplement it with additional static shelves and cabinets for oversized flat material such as architectural plans and drawings and drawers for reels of microfilm. The room will be fully insulated and sealed with its own HVAC system to ensure the continued safe and secure preservation of our collective past for use by our future generations.

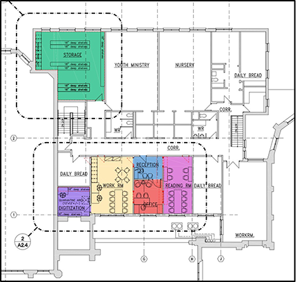
Public Suite

Second Floor

Three adjacent rooms on the second floor will become the Leighton Archives public spaces. A small central reception area and office for the Archivist will be flanked on one side by a Reading Room for in-house researchers and other Archives users. On the other side we will create an efficient Workroom for our team of volunteers to process new acquisitions and complete routine maintenance of the collections. An adjacent annex will provide necessary equipment to support our growing digital preservation program.

Storage

Second Floor

A secure storage area will be located across the hall on the second floor.

The room will provide space on this level for material brought up from the Vault and currently in use by Archives patrons as well as for essential overflow storage for archival supplies. In addition, it will temporarily house new acquisitions from parishes across the diocese. It will include quarantine space to hold your material for a time, to ensure it is free of mould and potential creepy-crawlers. And the room will provide storage while new parish deposits are in the process of being catalogued and added to our holdings.

Together these Cathedral spaces more than double our current footprint at Huron University College.

We welcome your comments and are always happy to answer your questions about the move. Check out the new FAQ section on the Archives website (https://diohuron.org/resources/huron-archives/ pages/frequently-asked-questions-archives-relocation-project) or contact us via email at lleightonarchives@huron.anglican.ca

Tom Adam is Chair of the Archives Relocation Working Group